Crash Testing and Evaluation of the Modified G4(1S) W-Beam Guardrail on 2:1 Slope – Phase I (405160-4)

<<Back to Search Results


Final Report Link: Crash Testing and Evaluation of the Modified G4(1S) W-Beam Guardrail on 2:1 Slope

 

Links to other Phases:

Phase II – 405160-20   

Phase III – 603221

TTI Research Supervisor:
Akram Y. Abu-Odeh
Research Scientist
Texas A&M Transportation Institute
3135 TAMU
College Station, Texas 77843-3135
(979) 862-3379
[email protected]
Pooled Fund Technical Representative:
Jeffery K. Petterson, P.E.
Roadside Safety Engineer
Washington State Department of Transportation
P.O. Box 47329
Olympia, WA 98504-7246
(360) 705-7146
[email protected]

ABSTRACT:

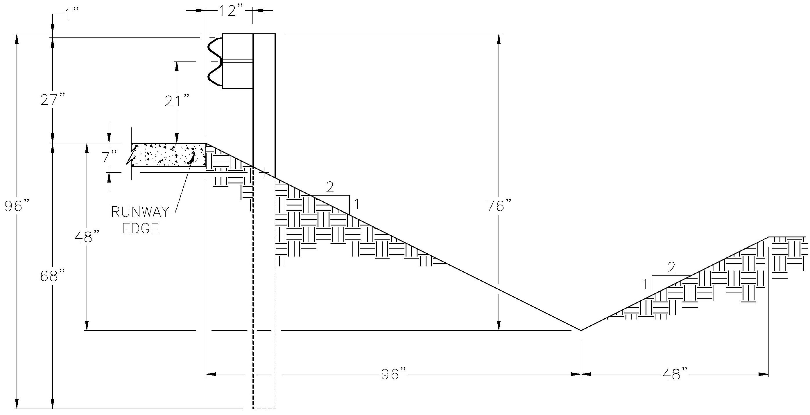
This project investigated the placement of a guardrail on a slope that is 2H: 1V. The system included 7-ft long posts placed at 6 ft-3 in spacing on the sloped section of the guardrail. The rail height is 27 inches and it was placed on the slope so that the face of the guardrail aligns with the slope break. Assessments were made based on the NCHRP Report 350 for the following criteria: structural adequacy, occupant risk, and vehicle trajectory. Although the vehicle was able to be contained and redirected, the vehicle rolled and rested on its left side. Hence, the full scale crash test failed to pass the evaluation criteria of NCHRP Report 350.

oz2z2118

bubba-image1Executive Summary


VIDEO LINKS:

Pan Shot (real time)

Rear of Vehicle View (real time)

High-Speed Frontal View of Vehicle

High-Speed Overhead View

High-Speed Field Side of Barrier View


2017-01-17